Choose your country to see local content
IT Dils Italy NL Dils Nederlands PT_PT Dils Portugal ES Dils Spain ES Dils Lucas Fox FR Eol - A Dils Company
Visit
Dils – Netherlands
Dils – Netherlands Dils – Netherlands
  • Sectoren
    KantorenLogistiek & IndustrieelHospitalityWonen & Residentieel
  • Diensten
    HuurdersEigenarenInvesteerders
  • Aanbod
    KantorenLogistiek / IndustrieelWijkengids
  • Nieuws
  • Over ons
    Dit zijn wijTeamHet Dils ManifestInternationalRebrandingWerken bij Dils
  • Transformatie
  • Contact
0
Language
EN Engels NL Nederlands
International
IT Dils Italy NL Dils Nederlands PT_PT Dils Portugal ES Dils Spain ES Dils Lucas Fox FR Eol - A Dils Company
  • NL
    EN NL
|
Dils Italy IT Dils Nederlands NL Dils Portugal PT_PT Dils Spain ES Dils Lucas Fox ES Eol - A Dils Company FR
Van Gool Elburg - A Dils Company Van Gool Elburg - A Dils Company
Van Gool Elburg - A Dils Company
Bekijk ons aanbod

Milano Sud

Buccinasco, Via della Resistenza, 133, 20090 Buccinasco MI, Italy

Bel ons

+39 02 80 29 21

Stuur ons een e-mail

logistics@dils.com

Vul het onderstaande formulier in voor meer informatie en we nemen contact met u op.

    Lees de informatie over het gebruik van virtuele agents.

    U ontvangt een gratis oproep van het gratis nummer: 800 931 408. Voor een betere ervaring raden wij aan om in een stille omgeving te antwoorden, zonder achtergrondgeluid en zonder gebruik van de luidsprekerfunctie. Het gesprek wordt opgenomen en tot 15 dagen bewaard, en de bijbehorende gegevens worden uitsluitend verwerkt ter ondersteuning van uw vastgoedzoektocht en om de kwaliteit van de service te monitoren, in overeenstemming met het privacybeleid dat beschikbaar is op onze website in de sectie "Privacy".

    logistics - Milano Sud - Logistiek - Dils - gallery - 1
    logistics - Milano Sud - Logistiek - Dils - gallery - 2
    logistics - Milano Sud - Logistiek - Dils - gallery - 3
    logistics - Milano Sud - Logistiek - Dils - Verdiepingsplan - 1
    1 / 4
    Plannen Kaart
    logistics - Milano Sud - Logistiek - Dils - gallery thumbnail - 1
    logistics - Milano Sud - Logistiek - Dils - gallery thumbnail - 2
    logistics - Milano Sud - Logistiek - Dils - gallery thumbnail - 3
    logistics - Milano Sud - Logistiek - Dils - Verdiepingsplan thumbnail - 1

    Kenmerken

    Code
    LMI-1081
    Type
    Logistiek
    Contract
    Verhuur, Verkoop
    Zone
    Milan - Inner West
    Beschikbaarheid
    Onmiddellijk
    Totaal oppervlak
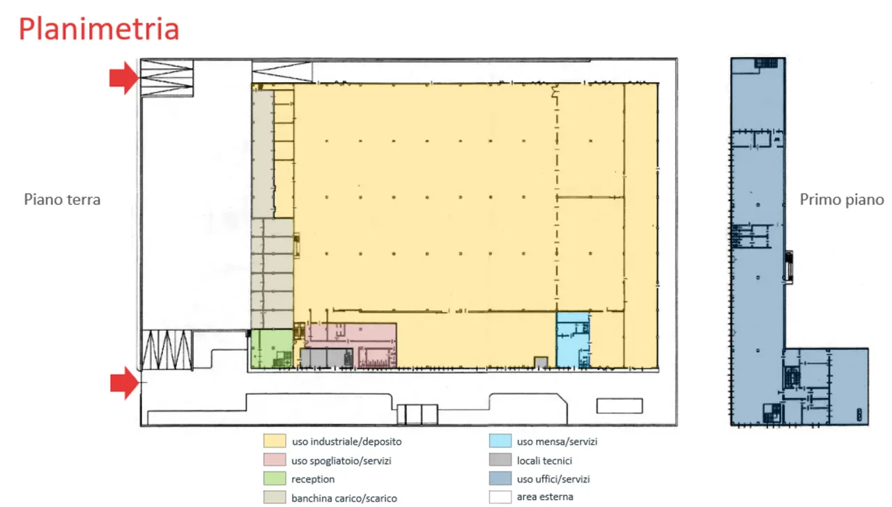
    9.640 m²
    Energielabel
    In afwachting van release
    Sommige inhoud is mogelijk niet beschikbaar in de geselecteerde taal

    This industrial-logistics property, located in Buccinasco, represents a functional solution for operators in the sector thanks to its proximity to the main motorway routes. The property has an under-beam height of 7.2 meters and 5 loading bays, features that promote efficient use of space.

    The recently constructed building is in a strategic position that allows for quick connections with the center of Milan and the main infrastructure hubs of the metropolitan area.

    Overige info
    Typologie Logistiek/Industrieel
    Hoogte onder de balk 7,20 m
    Oppervlaktedetails
    Naam Magazijnoppervlakken Kantooroppervlakken Beveiligingsruimte
    1e —   850 m² —  
    Oppervlakte 8.700 m² —   90 m²
    Aansluitingen
    Snelwegen A7 - 4 km Auto, A50 - 5,5 km Auto
    Kaart

    Gerelateerd zoeken

    logistics - San Giuliano Milanese - S. Ulteriano - Logistiek - Dils - featured
    Verkoop
    LMI-1096

    South Milan

    San Giuliano Milanese, Via Basilicata, 10
    Ga naar pagina
    logistics - East Milan - Logistics - Dils - featured
    Verhuur
    LMI-1047

    East Milan

    Milano, Via Gaudenzio Fantoli, 6/3, 20138 Milano MI, Italy
    Ga naar pagina
    logistics - San Giuliano Milanese - Via Arno 8/10 WHA - Logistiek - Dils - featured
    Verhuur
    LMI-1082

    South-East Milan

    San Giuliano Milanese, Via Arno, 8, 20097 San Giuliano Milanese MI, Italy
    Ga naar pagina
    logistics - North Milan - Logistics - Dils - featured
    Verhuur
    LMI-3752

    North Milan

    Novate Milanese, Via Fratelli Beltrami
    Ga naar pagina
    logistics - Carpiano - Blackstone III - Logistiek - Dils - featured
    Verhuur
    LMI-1071

    South Milan

    Carpiano, Via Aldo Moro, 4
    Ga naar pagina
    logistics - South Milan - Logistics - Dils - featured
    Verhuur
    LMI-1055

    South Milan

    Carpiano, Via Aldo Moro, 4, 20074 Carpiano MI, Italy
    Ga naar pagina
    logistics - South Milan - Logistics - Dils - featured
    Verkoop
    LMI-1057

    South Milan

    Motta Visconti, Via Mulini, 48, 20086 Motta Visconti MI, Italy
    Ga naar pagina
    logistics - North Pavia - Logistics - Dils - featured
    Verhuur
    LPV-3815

    North Pavia

    Vidigulfo, 76H7+QV, 27018 Vidigulfo, Province of Pavia, Italy
    Ga naar pagina
    logistics - Akno Caleppio Business Park - Logistiek - Dils - featured
    Verhuur
    CLMI-122

    East Milan

    Settala, Via Bruno Buozzi, 5
    Ga naar pagina
    logistics - Torrevecchia Pia Green Logistics Park - Logistics - Dils - featured
    Verhuur
    LPV-3771

    Torrevecchia Pia Green Logistics Park

    Torrevecchia Pia, 78H4+5V Torrevecchia Pia
    Ga naar pagina
    logistics - Brugherio Logistics Centre - Logistiek - Dils - featured
    Verhuur
    LMB-121

    Brugherio Logistics Centre

    Brugherio, Via Bindellera, 20861 Brugherio MB, Italy
    Ga naar pagina
    logistics - West Milan - Logistics - Dils - featured
    Verhuur
    LMI-3764

    West Milan

    Robecchetto con Induno, Via S. Maurizio, 47
    Ga naar pagina
    logistics - North-West Cremona - Logistics - Dils - featured
    Verhuur
    LCR-1296

    North-West Cremona

    Dovera, Via Umberto I
    Ga naar pagina
    logistics - East Pavia - Logistics - Dils - featured
    Verhuur
    LPV-1110

    East Pavia

    Corteolona e Genzone, SP191 Corteolona
    Ga naar pagina
    logistics - East Monza - Logistics - Dils - featured
    Verhuur
    LMB-975

    East Monza

    Roncello, Via Leonardo da Vinci
    Ga naar pagina

    Uitgelicht aanbod

    logistics - Kleine tocht 14 - Logistiek - Dils - featured
    Verhuur
    LNL-345

    Kleine tocht 14

    Zaandam
    Zaandam, Kleine Tocht 14
    Ga naar pagina

    Milano Sud

    Buccinasco, Via della Resistenza, 133, 20090 Buccinasco MI, Italy

    logistics - Milano Sud - Logistiek - Dils - gallery thumbnail - 1
    logistics - Milano Sud - Logistiek - Dils - gallery thumbnail - 2
    logistics - Milano Sud - Logistiek - Dils - gallery thumbnail - 3
    logistics - Milano Sud - Logistiek - Dils - gallery - 1
    logistics - Milano Sud - Logistiek - Dils - gallery - 2
    logistics - Milano Sud - Logistiek - Dils - gallery - 3
    logistics - Milano Sud - Logistiek - Dils - Verdiepingsplan thumbnail - 1
    logistics - Milano Sud - Logistiek - Dils - Verdiepingsplan - 1
    Dils – Netherlands
    Sectoren
    • Kantoren
    • Logistiek & Industrieel
    • Hospitality
    • Wonen & Residentieel
    Diensten
    • Huurders
    • Eigenaren
    • Investeerders
    Aanbod
    • Kantoren
    • Logistiek / Industrieel
    • Wijkengids
    Over ons
    • Dit zijn wij
    • Team
    • Het Dils Manifest
    • International
    • Nieuws & Onderzoek
    • Werken bij Dils
    • Contact
    Volg ons
    Dils Copyright © 2026 P.IVA 07575790154 - Privacy | Algemene voorwaarden | Cookies | Cookie Preferences | Accessibility