Choose your country to see local content
IT Dils Italy NL Dils Nederlands PT_PT Dils Portugal ES Dils Spain ES Dils Lucas Fox FR Eol - A Dils Company
Visit
Dils – Netherlands
Dils – Netherlands Dils – Netherlands
  • Sectors
    OfficesLogistics & IndustrialHospitalityLiving & Residential
  • Services
    OccupiersLandlordsInvestors
  • Properties
    OfficesLogistics / IndustrialNeighborhoods Guide
  • News
  • About us
    This is usTeamThe Dils ManifestoInternationalRebrandingCareers
  • Transformation
  • Contact Us
0
Language
EN English NL Dutch
International
IT Dils Italy NL Dils Nederlands PT_PT Dils Portugal ES Dils Spain ES Dils Lucas Fox FR Eol - A Dils Company
  • EN
    EN NL
|
Dils Italy IT Dils Nederlands NL Dils Portugal PT_PT Dils Spain ES Dils Lucas Fox ES Eol - A Dils Company FR
Van Gool Elburg - A Dils Company Van Gool Elburg - A Dils Company
Van Gool Elburg - A Dils Company
Find your place

Decemviri 20

Milano, Via Privata Decemviri, 20

Call us

+39 02 80 29 21

Email us

office@dils.com

For more information fill out the form below and we’ll contact you.

    Read the information notice on the use of virtual agents.

    You will receive a free call from the toll-free number: 800 931 408. For a better experience, we recommend answering in a quiet environment, without background noise, and not using speakerphone. The call will be recorded and stored for up to 15 days, and the related data will be processed solely to support your property search and monitor service quality, in accordance with the privacy policy available on our website in the "Privacy" section.

    office - Decemviri 20 - Office - Dils - gallery - 1
    office - Decemviri 20 - Office - Dils - gallery - 2
    office - Decemviri 20 - Office - Dils - gallery - 3
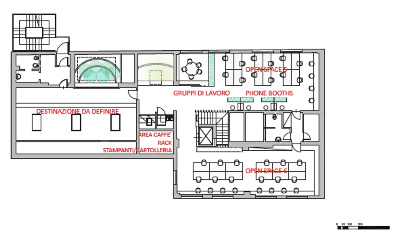
    office - Decemviri 20 - Office - Dils - Floor Plan - 1
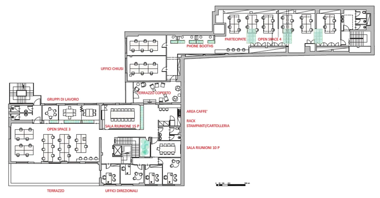
    office - Decemviri 20 - Office - Dils - Floor Plan - 2
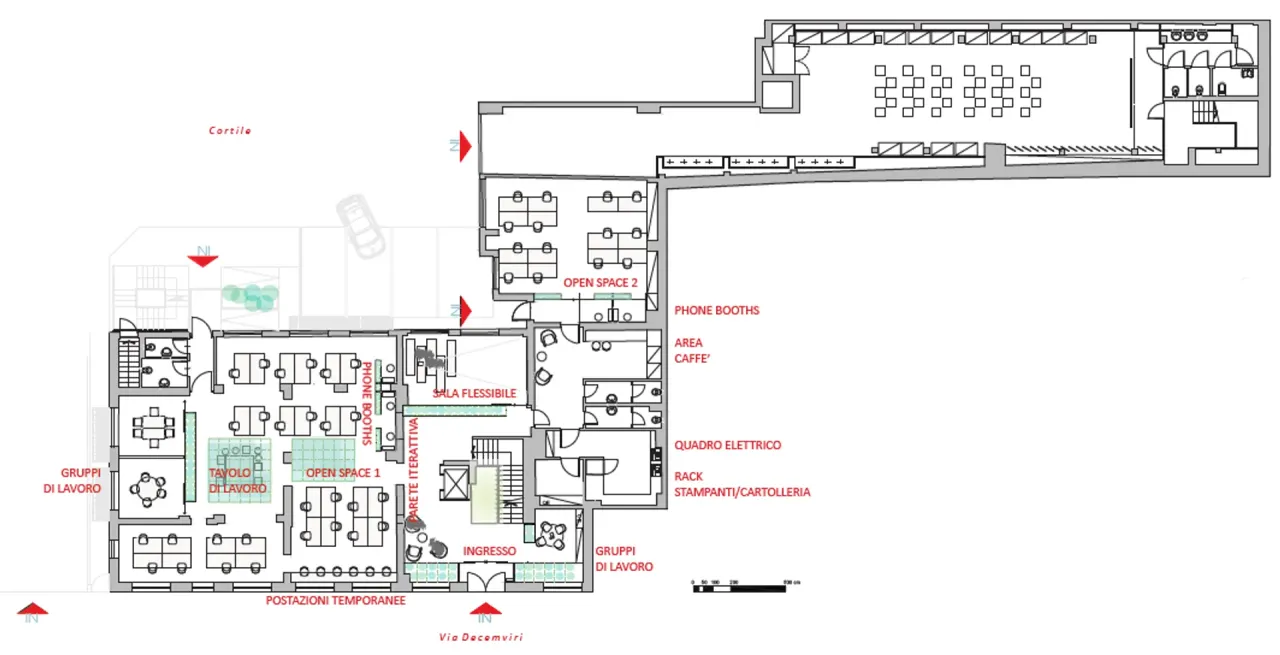
    office - Decemviri 20 - Office - Dils - Floor Plan - 3
    1 / 6
    Plans Map
    office - Decemviri 20 - Office - Dils - gallery thumbnail - 1
    office - Decemviri 20 - Office - Dils - gallery thumbnail - 2
    office - Decemviri 20 - Office - Dils - gallery thumbnail - 3
    office - Decemviri 20 - Office - Dils - Floor Plan thumbnail - 1
    office - Decemviri 20 - Office - Dils - Floor Plan thumbnail - 2
    office - Decemviri 20 - Office - Dils - Floor Plan thumbnail - 3

    Property details

    Code
    OMI-4111
    Type
    Office
    Contract
    Sale
    Zone
    Periphery
    Availability
    Q3 2026
    Total surface
    2,393 sqm
    Energy class
    Pending release

    Situated in one of the most strategic areas of Milan, this exclusive 2,400 sqm property represents an ideal solution for the establishment of a corporate representative office. The building combines functionality and comfort, thanks to bright and well-organized spaces, equipped with air conditioning, suspended ceilings, and equipped archives.

    The location in the Forlanini district ensures efficient connection with the entire city, with the M4 Repetti metro stop reachable in just five minutes on foot, facilitating daily commutes. The property has covered parking spaces, charging stations for electric vehicles, and dedicated areas for motorcycles, combining functionality and attention to sustainability.

    This proposal represents a perfect opportunity for companies seeking an efficient and strategically positioned setting.

    Other info
    Class Grade B
    Delivery As-is
    Archives Yes
    Car parking spaces 4
    Motorbike parking spaces Yes
    False ceiling Yes
    Air system HVAC
    Surface details
    Name Office areas External areas Warehouse areas Parking
    2nd 379 sqm —   —   —  
    1st 708 sqm 66 sqm —   —  
    GF 516 sqm 120 sqm —   308 sqm
    B1 —   —   296 sqm —  
    Connections
    Subway Stations M4 - Repetti - 5' Walking
    Map

    Search related

    office - Urban Hub - Piceno 17 - Office - Dils - featured
    Letting - Sale
    OMI-3515

    Urban Hub

    Milano, Urban Hub - Viale Piceno, 17
    Go to page
    office - Cortesette - Office - Dils - featured
    Sale - Letting
    OMI-3041

    Cortesette

    Milano, Via Filippo Corridoni, 7
    Go to page
    office - Ponchielli 7 - Office - Dils - featured
    Sale
    O69850

    Ponchielli 7

    Milano, Via Ponchielli 7
    Go to page
    office - Porta Romana 70 - Office - Dils - featured
    Sale
    OMI-4037

    Porta Romana 70

    Milano, Corso di Porta Romana, 70
    Go to page
    office - MS6 - Serio 6 - Office - Dils - featured
    Sale
    OMI-3903

    MS6

    Milano, Via Serio, 6
    Go to page
    office - Quindes - Office - Dils - featured
    Sale
    OMI-3680

    Quindes

    Milano, Via San Martino, 15
    Go to page
    office - Filzi 27 - Office - Dils - featured
    Letting - Sale
    OMI-2560

    Filzi 27

    Milano, Via Fabio Filzi, 27
    Go to page
    office - Gian Giacomo Mora 9 - Office - Dils - featured
    Sale
    OMI-4122

    Gian Giacomo Mora 9

    Milano, Via Gian Giacomo Mora, 9
    Go to page
    office - Rimembranze di Greco 51 - Office - Dils - featured
    Sale - Letting
    OMI-3992

    Rimembranze di Greco 51

    Milano, V.le delle Rimembranze di Greco, 51
    Go to page
    office - Grazzini 14 - Office - Dils - featured
    Sale
    OMI-4129

    Grazzini 14

    Milano, Via Privata Anton Francesco Grazzini, 14
    Go to page
    office - Camp 6° - Office - Dils - featured
    Letting - Sale
    COMI-204

    Camp 6°

    Sesto San Giovanni
    Sesto San Giovanni, Via Franco Sacchetti, 20
    Go to page
    office - Ludovico di Breme 78 - Office - Dils - featured
    Sale - Letting
    OMI-75

    Breme 78

    Milano, Via Ludovico di Breme, 78
    Go to page
    office - Goldoni 44 - Office - Dils - featured
    Sale
    ON-549

    Goldoni 44

    Roma, Largo Carlo Goldoni, 44
    Go to page
    office - Maxima - Amba Aradam 5 - Office - Dils - featured
    Sale
    ORM-1134

    MAXIMA - Via dell'Amba Aradam 5

    San Giovanni, Re di Roma
    Roma, Via dell'Amba Aradam, 5
    Go to page

    Featured Properties

    office - WTC - Towers 1-8 - Office - Dils - featured
    Letting
    ONL-81

    WTC - Towers One - Eight

    Zuid
    Amsterdam, Strawinskylaan 1
    Go to page
    office - Berghaus - Office - Dils - featured
    Letting
    ONL-2689

    Berghaus

    Nieuw-West
    Amsterdam, Koningin Wilhelminaplein 2-4
    Go to page
    office - B Vital - Office - Dils - featured
    Letting
    ONL-2181

    B Vital

    Zuidoost
    Amsterdam, De Entree 199-273
    Go to page
    office - Staal - Kade - Office - Dils - featured
    Letting
    ONL-4792

    Staal - Kade

    Zuid
    Amsterdam, Rijnsburgstraat 9-11
    Go to page
    office - Apollolaan 171 - Office - Dils - featured
    Letting
    ONL-2056

    Apollolaan 171

    Amsterdam
    Amsterdam, Apollolaan 171
    Go to page
    office - SPOT - Office - Dils - featured
    Letting
    ONL-2449

    SPOT

    Zuidoost
    Amsterdam, Hiraistraat 2-4
    Go to page
    office - Unitz - Unitz Leidsestraat - Office - Dils - featured
    Letting
    ONL-2716

    Unitz - Unitz Leidsestraat

    Centrum
    Amsterdam, Leidsestraat 69
    Go to page

    Decemviri 20

    Milano, Via Privata Decemviri, 20

    office - Decemviri 20 - Office - Dils - gallery thumbnail - 1
    office - Decemviri 20 - Office - Dils - gallery thumbnail - 2
    office - Decemviri 20 - Office - Dils - gallery thumbnail - 3
    office - Decemviri 20 - Office - Dils - gallery - 1
    office - Decemviri 20 - Office - Dils - gallery - 2
    office - Decemviri 20 - Office - Dils - gallery - 3
    office - Decemviri 20 - Office - Dils - Floor Plan thumbnail - 1
    office - Decemviri 20 - Office - Dils - Floor Plan thumbnail - 2
    office - Decemviri 20 - Office - Dils - Floor Plan thumbnail - 3
    office - Decemviri 20 - Office - Dils - Floor Plan - 1
    office - Decemviri 20 - Office - Dils - Floor Plan - 2
    office - Decemviri 20 - Office - Dils - Floor Plan - 3
    Dils – Netherlands
    Sectors
    • Offices
    • Logistics & Industrial
    • Hospitality
    • Living & Residential
    Services
    • Occupiers
    • Landlords
    • Investors
    Real Estate
    About us
    • This Is Us
    • The Dils Manifesto
    • International
    • News & Research
    • Careers
    • Contact Us
    Follow us
    Dils Copyright © 2023 P.IVA 07575790154 - Privacy | Terms and conditions | Cookies | Cookie Preferences | Accessibility